ExMoDesign
Dein Partner für das perfekte DIY - „Selber machen“ Camperdesign
Zurück in die Natur - genieße Deine Freiheit inmitten der Natur. Lass deinen Traum Wahrheit werden.
Wir erstellen dein Individuelles 3D-Design Book für Deinen autarken DIY-Sprinter oder für Dein Expeditionsmobil.
Du träumst davon dir deinen eigenen DIY Camper auszubauen, aber weißt nicht wie du das „selber machen“ anfangen willst.
Wir geben Dir den „roten Faden“
Wir können Dich bei deiner Findung und bei der Erstellung deines perfekten Grundriss unterstützen und begleiten. Wir beraten dich umfassend zu allen technischen Feinheiten und Kniffen die beim Ausbau zu bedenken sind und geben dir unsere Erfahrungswerte weiter.
ExMoDesign
Wir planen mit dir deinen perfekten Campervan
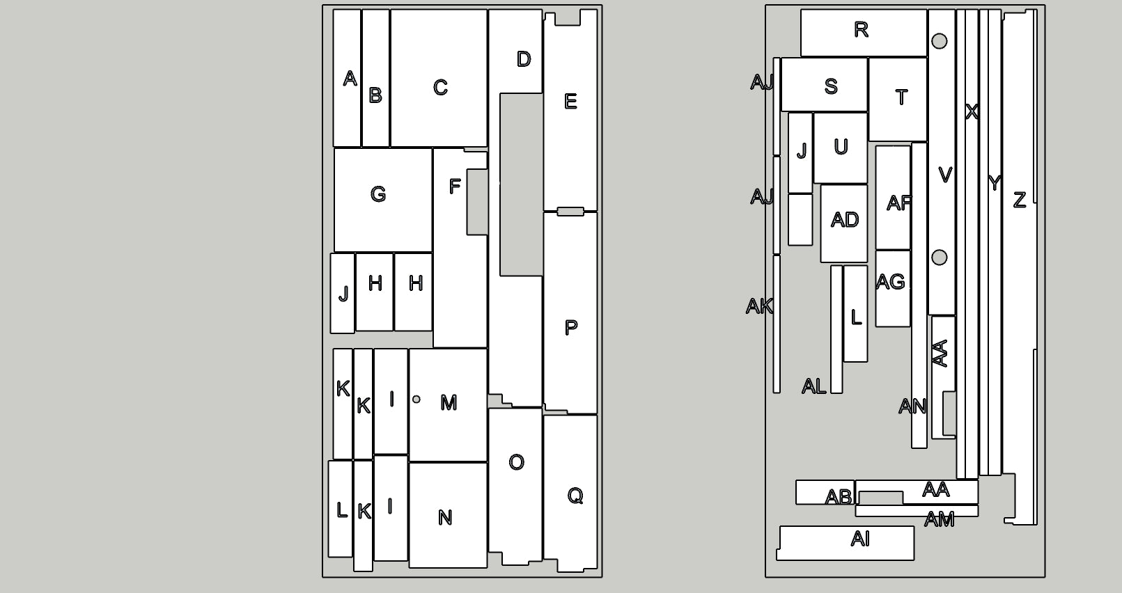
3D-Design Book
Zur Visualisierung deines Camper Ausbaus
Planung der Arbeitsschritte
Unterteilung der Arbeitsabschnitte im 3D Modell
Detaillierte Anleitungen
Bemaßte 3D & 2D Modelle als Bauvorlage
Schnittvorlagen
Akkurate Schnittvorlagen um das Material passend zu bestellen
Dienstleistungen und Preise für Deinen Camper im Van-, Sprinter-, Crafter-, oder LKW- Format
- Grundriss mit Möbelplanung und 2D Dateien (.dwg oder .dxf) zum Fräsen der Möbelplatten für 2600 €*
Zuerst erstellen wir ein Volumenkörperdesign. Wir sind mit Dir im regen Austausch, so dass Dein perfekter Ausbau bereits hier zu „wachsen“ beginnt.
Nach Freigabe vom Volumen- Design werden wir mit dem Möbeldesign beginnen. Wenn auch dieses abgeschlossen ist erstellen wir für jeden einzelnen Arbeitsschritt die 2D Platten , welche bei deinem Holzlieferanten passend gefräst werden.
Das 3D Designbook ist Deine Anleitung zum „selber bauen“ deines DIY Campers.
Das 3D Design ist komplett inklusive, sodass du bei der Fertigung und Montage in einem frei erhältlichen Programm eigenständig die Maße entnehmen kannst.
- Elektroplanung ab 850 €* (abhängig von Umfang und Komplexität)
- Bohrungen für Steckdosen, Schalter im 3D-Design
- PDF mit Schaltplan
- 12V Planung mit Kabelquerschnitten
- 230V Planung
- Komponentenliste (nicht Kabel und Kabelschuhe)
- Auch Kabelkanäle im 3D Design sind möglich
- Planung Heizung 700 €* mit Komponentenliste und Verschlauchungsplan
- Planung Wasser 700 €* mit Komponentenliste und Verschlauchungsplan
Auch nach dem Erstellen des Designs sind wir immer für dich da und beantworten gerne deine Fragen.
*Alle Preise sind Nettopreise
ExmoDesign
Elektroplanung
Vollständige Planung deiner Elektro-Installation. Unter anderem:
- Bohrungen für Steckdosen, Schalter im Design
- PDF-Datei mit Schaltplan
- 12V Planung mit Kabelquerschnitten
- 230V Planung
- Komponentenliste (nicht Kabel und Kabelschuhe)
- Möglichkeit die Kabelkanäle ins 3D Design zu übernehmen
ExmoDesign
Sanitärplanung
Vollständige Planung deines winterfesten Campervans. Unter anderem:
- Komponentenliste
- Pumpen, Boiler, Filter, etc.
- Verschlauchungsplan
ExmoDesign
Heizungsplanung
Vollständige Planung deines winterfesten Campervans. Unter anderem:
- Komponentenliste
- Standheizungen (Luft und Wasser)
- Dimensionierung & Leistung
- Verschlauchungsplan
Wie ist der "rote Faden"?
1. Du hast Interesse daran von ExMoDesign die Planung deines Van-Ausbaus machen zu lassen, kontaktiere uns über das Kontaktformular unten auf der Seite. Am Besten gibst du uns bereits möglichst viele Infos zu deinen Wünschen und Vorstellungen mit, damit wir eine Idee des Umfangs bekommen.
2. Für die meisten ist der eigene Camperausbau ein Lebenstraum und eine einmalige Sache. Für die Erfüllung des Lebenstraums muss für beide Seiten eine Sympathie bestehen. Wir kontaktieren Dich und wollen, dass wir uns erst kennenlernen. Alles unverbindlich!
3. Da es für alle fair sein soll, sind unsere Zahlungsbedingungen dies auch. Wir machen es so, dass die Hälfte vorab und die andere Hälfte nach abgeschlossener Planung und Übergabe aller Dateien bezahlt wird.
4. Wir senden Euch eine Checkliste und mit diesen Angaben beginnen wir Euer Projekt.
5. Je nach Größe und Komplexität deines Projekts, erarbeiten wir innerhalb der nächsten Wochen das 3D-Designbook und deine Ausbaudokumente. Hierfür sprechen wir uns immer wieder mit dir ab und stehen im regen Austausch via Mail, Telefon, Whatsapp oder Telegram, ganz wie du es bevorzugst.
6. Die Planung ist abgeschlossen und wir präsentieren dir das vollständige 3D Designbook. Sollte etwas nicht perfekt getroffen sein, bessern wir natürlich gerne nach.
6. Nun ist es an dir, du hast alles an der Hand, um deinen Ausbau zu starten. Für die benötigten Produkte wende dich gerne an Vanstudio, um ein Angebot für deine Hardware zu bekommen.
Schreibe uns jetzt und verwirkliche dir deinen Traum vom DIY Camper
Einige unserer Produkte für deinen Ausbau
-
PUSHrack Fahrradträger V2
Regular price From €167,78Regular priceUnit price / perSale price From €167,78 -
Auslass-Adapter Set für Overland Fuel Wasserkanister
Regular price From €19,20Regular priceUnit price / perSale price From €19,20 -
Wasserkanister für Camping & Overlanding von Overland Fuel
Regular price From €51,95Regular priceUnit price / perSale price From €51,95 -
Einhandverriegelung für Schwerlastauszüge
Regular price From €18,50Regular priceUnit price / perSale price From €18,50 -
Multifunktionales Molleboard für Airlineschienen und Thule Fahrradträger Inkl- VA Schrauben
Regular price €145,95Regular priceUnit price / perSale price €145,95 -
VW Crafter MAN TGE Original Radlaufverbreiterungen (4 Stück)
Regular price €420,00Regular priceUnit price / perSale price €420,00 -
Molleboard V2 - Universeller Geräteträger für Airlineschienen inkl. VA Schrauben
Regular price €145,95Regular priceUnit price / perSale price €145,95 -
Abschließbare Halterung für Overland Fuel Kraftstoff- und Wasserkanister
Regular price €77,65Regular priceUnit price / perSale price €77,65 -
Kanisterhalterung schwarz für Kraftstoff- und Wasserkanister von Overland Fuel
Regular price €45,10Regular priceUnit price / perSale price €45,10 -
Fahrradhalter für Airline-Zurrschiene
Regular price From €37,99Regular priceUnit price / perSale price From €37,99